Wohnhaus mit Carport
Auf dem Grundstück der Windmühle in Hoyerhagen wurde eine historische, aber baufällige Quereinfahrtsscheune rückgebaut. Das gewonnene Material, Backsteine im Reichsformat, wurde von den Bauherren vom Mörtel gereinigt und auf Paletten für eine Wiedernutzung eines Neubauses mit denkmalpflegerischen Auflagen gesammelt.
Der Neubau (in Holzrahmenbauweise) wurde der ursprünglichen Optik der Quereinfahrtsscheune nachgebildet und mit der neuen Nutzung im Inneren verknüpft. Die großen Schiebetore werden ebenso wieder montiert, wie auch ein restauriertes Eisenfenster. Beide Elemente haben aber nur noch optische Gründe, ohne weitere Funktionen.
Die Zwischendecke besteht ebenfalls aus Holz und wurde als massive Brettstapeldecke in Einzelteilen verlegt und untereinander verschraubt.
Eine grosse PV Fläche sorgt für viel Energie und Wärme im ganzen Haus.
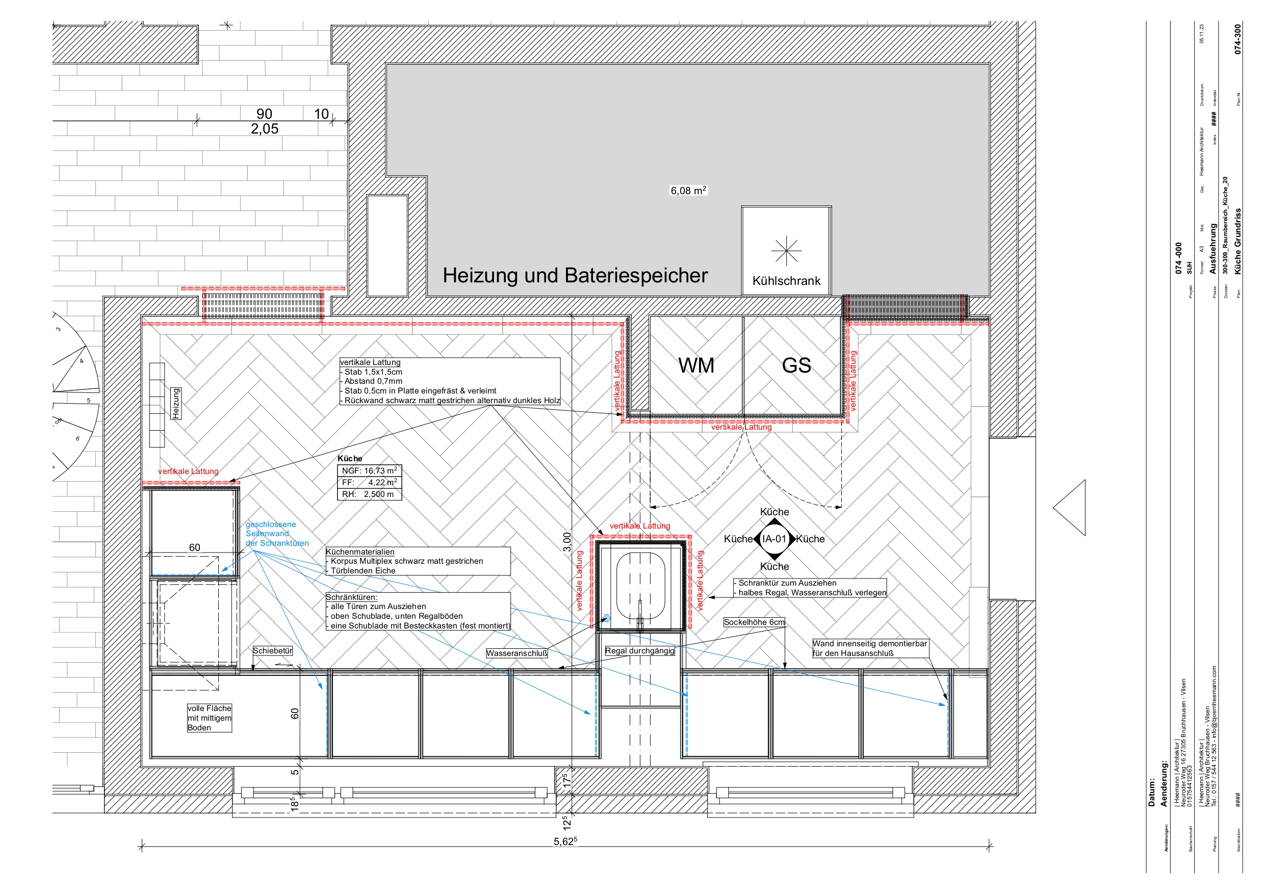
Verarbeitetes Material:
- Schaumglasschotter
- Holz in Wand, Dach und Decke
- historischer Backstein im Kreuzverband (Reichsformat)
- Lehm und Kalk











Sanierung Bauernhaus Martfeld
Ein altes Bauernhaus in Martfeld wird zum Leben erweckt. Das in die Jahre gekommene Gebäude, in direkter Nähe zum alten Pfarrhaus in Martfeld soll im gesamten Erdgeschoss und Teilen im Dach saniert und modernisiert werden. Auf Grund der zu erhaltenen Fassade, wird der Innenbereich mit einem Hanfkalkstein vermauert und mit Lehm bzw. Kalk verputzt. Die Fenster werden den neuen Ansprüchen angepasst und vergrössert, ausser auf der Ostseite, hier bleiben die alten und restaurierten Stallfenster erhalten.
Das Dach wird zum Teil ausgebaut und mit einer Aufsparren- und Zellulosedämmung neu aufgebaut. Die restlichen, nicht gedämmten Flächen werden für einen späteren Ausbau vorbereitet. Die bis dahin gedämmte oberste Geschossdecke soll mit Seegras zwischen den Balken gedämmt werden.
Fertigstellung voraussichtlich 2025.


Sanierung Einfamilienhaus
Das freistehende Einfamilienhaus in Homfeld (bei Bruchhausen-Vilsen) aus dem Jahr 1973 / 74 wurde durch bauliche Eingriffe moderner zugeschnitten. Die ehemals kleinen Räume wurden geöffnet, sodass viel natürliches Licht eindringen kann. Bei der Sanierung wurden alle Wände auch neu verputzt, so kann der positive Effekt von Kalk und Lehm im Haus aktiv genutzt werden. In der Planungsphase stand früh fest, dass die Farben der 70er Jahre aufgegriffen und neu definiert werden. Ein zartes grün, aber auch ein taupeblau zieren die Wände im Erdgeschoss. Das Dachgeschoss wurde ebenfalls kernsaniert, die alte Dämmung wurde entfernt und durch 20cm starke Holzfaserdämmung ausgetauscht. Ein kleines Badezimmer wurde eingerichtet.
Grundfläche: 160qm
Leistungsphasen: 1-8














Umbau von einem Lagerraum zu einem Klassenraum
Für die Waldorfschule Bruchhausen - Vilsen planten wir einen Umbau des vorhandenen Lagerraums zu einem Klassenraum. Die vorhandene Gebäudestruktur blieb grösstenteils bestehen, neu kamen Dachfenster, Fenster, Türen und Innenmaterialien. Der neue multifunktionale Raum sollte für den normalen Unterricht viel Tageslicht ins Innere leiten, aber für bestimmte Lehrveranstaltungen auch komplett abgedunkelt werden können.
Um so wenig wie möglich an Platz zu verlieren, wurde eine Bodenheizung installiert. Zur optimalen Belüftung wurden zwei elektrisch bedienbare Dachfenster montiert, die bei Bedarf die Dachfläche völlig abdunkeln können. Das grosse Fenster zur Nordseite konnte ohne Sonnenschutz montiert werden, bekam aber für das Abdunkeln des Raums ein Innenrollo. Für schulische Experimente, wurden zwei Mehrfachsteckdosen an elastischen Aufhängungen von der Decke heruntergelassen. Diese Flexibilität liess es zu, aus einem normalen Klassenzimmer einen komplett abgedunkeltes Experimentierlabor zu erschaffen.





Waldorfkindergarten Engeln
Der Waldorfkindergarten in Engeln brauchte für die hohe Nachfrage der Neuanmeldungen mehr Platz für die Kinder und der Büroorganisation. Ziel der Massnahme war es, den speziellen oktogon Grundriss mit einigen vorhanden Funktionen im Dachgeschoss zu organisieren, um im Erdgeschoss neue Gruppenräume zu erhalten.
Die Garderobe war der eigentliche Eingang zum Kindergarten der teilweise durch den ehemalige Dachbodenzugang über eine Dachluke massiv gestört wurde. Der ursprüngliche Eingang in der Mitte des Hauses wurde nur als Durchgangsraum zu dem dahinterliegende Büros genutzt. Diese Büroflächen sollen dem neuen Gruppenraum und dem Ruheraum weichen und im Dachgeschoss unterkommen. Der Zugang zum Dachgeschoss erfolgt künftig über eine Vollholztreppe im Durchgangsraum und dient als Lagerfläche für Kleinteile. Die gewonnen Flächen der ehemaligen Büros werden durch eine neue Wand und Zwischentüren neu verbunden. Der grosse Gruppenraum wurde ebenfalls neu aufgeteilt und bekommt eine massive Vollholzküche mit einer Durchreiche zur Ausgabe der Speisen.
Im Obergeschoss, das unterschiedlichen Höhenniveaus aufweist, wurde der höhere Teil als Lager genutzt. Der restliche Teil der Dachfläche unterteilte sich in ein Büro, ein Sitzungszimmer und ein Mitarbeiter WC.


Tabakbörse Bremen
Das historische Gebäude der Tabakbörse in der Bremen Überseestadt stand lange Zeit leer und sollte im Jahr 2019 wieder zu neuem Leben erweckt werden. Zunächst sollte der Kopfbau umgestaltet werden, um den Betrieb der Rohtabakfirma Hellmering, Köhne & Co. GmbH & Co. KG wieder in das ursprüngliche Gebäude zu führen.
Die vorhandene Bausubstanz mit den grossen Räumen erwies sich als optimale Grundlage für die neuen Anforderungen. Im Erdgeschoss konnte die ehemalige Küche zu einem Sitzungszimmer umgestaltet werden, der Treppenzugang zum Obergeschoss wurde verschlossen. Der Empfangsbereich wurde zu einem Büro umgewandelt mit dahinterliegende Elektroschaltzentrale. Der restliche Teil des Erdgeschosses soll im ursprünglichen Zustand erhalten bleiben und mit einer Lounge zum Verweilen und Rauchen einladen. Die historischen Telefonzellen, in denen in jungen Tagen der Börse gehandelt wurde, sollen ebenfalls erhalten bleiben, um den Flair dieser alten Zeit nahe zu kommen..
Im Obergeschoss wurde der alte Speisesaal zu einem Grossraumbüro auf zwei Ebenen umgebaut, das mit sehr viel Glasfläche natürliches Licht ins innere bringt. Die ehemalige Getränke- und Essensausgabe wurde neu aufgeteilt und in kleinere Büros umgestaltet. Das Lager auf der anderen Gebäudeseite wird zum Chefbüro umgebaut und das Stuhllager zur Teeküche.




Reihenmittelhaus in Bremen
Ein unscheinbares Reihenmittelhaus auf vier Etagen mit ehemals zwei Wohnungen wurde zu einer Wohneinheit umgestaltet. Ziel der Kernsanierung war es, neue Räume zu gestalten, das Heizsystem optimal im Einklang zu den Bewohnern zu gestalten und mit ökologischen Materialien zu arbeiten.
Im Erdgeschoss wurde die kleine Küche zum Esszimmer mit einer grossen Öffnung neu definiert und bindet nun beide Räume zu einer Einheit. In der Verlängerung des Esszimmers erstreckt sich zur Strasse hin das Wohnzimmer, ebenfalls mit einer grossen Öffnung. Die grossen Fenster und Öffnungen bietet den Bewohnern von Hausseite zu Hausseite viel natürliches Licht. Der ehemalige Flur wurde teilweise aufgelöst und dem Gäste WC zugeschlagen. Eine kleine Nische zwischen WC und Esszimmer wird als Weinschrank genutzt, auf der WC Seite wird die Nische als Ablage genutzt.
Das Obergeschoss wurde ebenfalls den heutigen Bedürfnissen angepasst, der vorhandene Wanddurchbruch blieb erhalten und dient als Wandschrank mit dahinter liegendem Büro. Der große ehemalige Empfangsflur der OG Wohnung wurde verkleinert, die gewonnene Fläche dient nun als Dusche des Bades.
Im Dachgeschoss blieben die beiden vorhandenen Zimmerbestehen, lediglich das Bad und WC wurden zusammen gelegt.
Das Dach blieb unverändert und nur mit einem neuen Dachausstiegsfenster bekleidet. Die oberste Geschossdecke wurde ausgeflockt und um 8cm verstärkt, um auf die geforderten Dämmwerte zu kommen.
Verwendete Materialien:
Lehmputz im ganzen Haus
Holzfaser- und Zellulosedämmung
Neue Fenster inkl. Rollladen
Wand- Dachheizung im gesamten Haus








Fassadengestaltung Violenstrasse Bremen
Im Auftrag der LFM Investment GmbH, wurde ein Studienauftrag für die Gestaltung der Fassade an der Violenstrasse 33/35 in Bremen, am Domshof erarbeitet. Das Gebäude aus den Anfang 1960 Jahren wurde im zweiten Quartal 2018 einer kompletten Fassadenneugestaltung unterzogen und erhält im Erdgeschoss neue gewerbliche
Mietereinheiten. Die ehemals verklickerte Fassade wurde mit einem leichten Kratzputz neu gestaltet, die Balkonbrüstungen wurden ausgetauscht und durch schlichte und filigrane Metallelemente getauscht. Das in der Kurve der Violenstrasse liegende Haus sticht durch seine Neugestaltung und dem Kontrast der Farbwahl elegant hervor. Bruchhausen - Vilsen
Auftraggeber: LFM Investment GmbH
Fassadenfläche: 382qm
Grundrissfläche: 425qm
Leistungsphasen: 1-3 +5









Stallgebäude (später Atelier und Pool):
Das Stallgebäude mit seiner rund 60qm Nettogrundfläche wird ebenfalls kernsaniert. Ebenso wurde die Bodenplatte abgesenkt und neu vergossen, inkl. einer Bodenheizung. Für den Innenausbau wurden zusätzlich Backsteine gebraucht, die im Nachbardorf in Form eines Häuslingshaus erworben haben. Dieses Gebäude wurde Stück für Stück demontiert, gereinigt und im ehemaligen Stallgebäude neu als Innenmauerwerk aufgebaut. Sowohl die Backsteine als auch die Dachbalken haben einen neuen Platz gefunden.
Die vorhandene Erweiterung des Stalls um rund 40qm, dient dem Poolbereich, dieser wird auch einer Sanierung der Fassade, aber auch der Innenausstattung unterzogen.
Frühbeete und Gewächshäuser:
Auf der zusätzlich erworbenen, 1500qm grossen Gartennutzfläche wurde ebenfalls angebaut. Dazu wurden ebenfalls die Steine aus dem Häuslingshaus genutzt. Frühbeete und Gewächshäuser werden nach und nach auf dem Grundstück erstellt, damit vieles im eigenen Garten angepflanzt werden kann. Bruchhausen - Vilsen
Grundfläche: 265qm
Leistungsphasen: 1-8







Sanierung Fachwerkhaus Oerdinghausen
Auf dem 3.400qm grossem Grundstück befinden sich neben den beiden Gebäuden, dem Wohnhaus und einem Stall, auch noch zwei Carpots. Die Planung und auch die Ausführung sind in vollen Zügen, sollen aber Mitte 2019 fertig gestellt sein.
Wohnhaus:
Das Haupthaus (1650) hat eine Nettogrundfläche von rund 165qm und wird derzeit kernsaniert. Die vorhandene Bodenplatte wurde komplett entfernt, 25cm abgegraben und ein neuer Fussboden inkl. Fussbodenheizung wurden eingebracht. Auch die Stützenfüße des Ständewerks des Fachwerkhauses wurden in diesem Zuge ausgebessert und teilweise mit neuen Fundamenten versehen. Viele Verkleidungen der Wände und Einbauschränke wurden entfernt, um die dahinter liegenden historischen Balken frei zusetzt. Zudem kamen einige antike Eichenbalken hinzu. Das Reetdach wird ebenso neu eingedeckt, resp. ausgebessert und gereinigt (Fertigstellung Juli 2018).
Um einen modernen Wohncharakter zu erschaffen wurden viele Wände entfernt, dadurch erhält das Fachwerkhaus eine neue Raumaufteilung und mehr Qualität der Nutzungseinheiten. Ein weiterer wichtiger Aspekt der Planung ist es, ökologische Materialien zu nutzen. So wurden die Wände mit Lehmputz und das Dach mit Jutedämmung versehen.


Lorem ipsum dolor sit amet consectetur adipisicing elit. Dolorem, natus!





Bei unserer Beratungstätigkeit schulen wir Architekten in allen relevanten Details für einen möglichst sinnvollen Einsatz natürlicher Baustoffe.
Von der Gründung bis zum Dach eines Hauses sind viele Dinge zu beachten und einzuhalten. Ökologische Stoffe können diese bauphysikalischen und baurechtlichen Vorgaben viel besser realisieren als konventionelle Baumaterialien. Natürliche Baustoffe können mit Ihren Eigenschaften effizient und mit simplen Konstruktionen bessere Werte erzielen als herkömmliche Materialien. Die Bandbreite der Produkte natürlicher Baustoffe wächst zunehmend und verbreitet sich erfreulicherweise in den letzten Jahren schnell auf dem Markt .
Nutzen Sie die Möglichkeit und buchen Sie unsere Beratung in Ihren Räumlichkeiten. Bei der Schulung werden neben den Details auch Muster verschiedener Hersteller präsentiert. So können Sie sich schneller einen Überblick über Details und den dazu gehörigen Materialen verschaffen.
Oder wir gehen direkt in eines Ihrer Projekte und entwickeln ökologische Alternativen für Ihren Auftraggeber.
Ich freue mich auf Ihre Kontaktaufnahme!
Zu unseren Kunden zählen:
- verschiedene Architekturbüros aus Niedersachsen und Bremen
- Architektenkammer Niedersachsen
- Klimaschutz- und Energieagentur Niedersachsen
- Leibniz Universität Hannover






Bei unserer Beratungstätigkeit schulen wir Architekten in allen relevanten Details für einen möglichst sinnvollen Einsatz natürlicher Baustoffe.
Von der Gründung bis zum Dach eines Hauses sind viele Dinge zu beachten und einzuhalten. Ökologische Stoffe können diese bauphysikalischen und baurechtlichen Vorgaben viel besser realisieren als konventionelle Baumaterialien. Natürliche Baustoffe können mit Ihren Eigenschaften effizient und mit simplen Konstruktionen bessere Werte erzielen als herkömmliche Materialien. Die Bandbreite der Produkte natürlicher Baustoffe wächst zunehmend und verbreitet sich erfreulicherweise in den letzten Jahren schnell auf dem Markt .
Nutzen Sie die Möglichkeit und buchen Sie unsere Beratung in Ihren Räumlichkeiten. Bei der Schulung werden neben den Details auch Muster verschiedener Hersteller präsentiert. So können Sie sich schneller einen Überblick über Details und den dazu gehörigen Materialen verschaffen.
Oder wir gehen direkt in eines Ihrer Projekte und entwickeln ökologische Alternativen für Ihren Auftraggeber.
Ich freue mich auf Ihre Kontaktaufnahme!
Zu unseren Kunden zählen:
- verschiedene Architekturbüros aus Niedersachsen und Bremen
- Architektenkammer Niedersachsen
- Klimaschutz- und Energieagentur Niedersachsen
- Leibniz Universität Hannover






Vorteile über das Wissen natürlicher Baustoffe:
- sommerlicher und winterlicher Wärmeschutz
- recyclebar
- wohngesund
- CO2 neutral oder auch positiv
- teilweise unendlich reversibel
- sinnvolle Materialverbindungen, die sich gegenseitig vor Schäden schützen
- Wettbewerbsvorteil gegenüber anderen Planerbüros
















Vorteile über das Wissen natürlicher Baustoffe:
- sommerlicher und winterlicher Wärmeschutz
- recyclebar
- wohngesund
- CO2 neutral oder auch positiv
- teilweise unendlich reversibel
- sinnvolle Materialverbindungen, die sich gegenseitig vor Schäden schützen
- Wettbewerbsvorteil gegenüber anderen Planerbüros
















| Heemann | Architektur | ist ein Zusammenschluss von Björn Heemann, Architekt (FH) und gelerntem Maurer und Irina Heemann, Designerin, M.A..
Im Gegensatz zu anderen Architekturbüros liegt unsere Stärke und Einzigartigkeit in der Verbindung vom detailreichen & fachspezifischen Wissen - im Konstrukt von zahlreichen Bereichen wie Materialkunde, Ingenieurswesen, Technik, 3D und Design:
unserem Gespür von Verknüpfung zwischen architektonischen und designtypischen Elementen.
Spezialisiert haben wir uns auf ökologische und nachhaltige Baustoffe, die im Gegensatz zu herkömmlichen Materialien viele positive Eigenschaften aufweisen und dem Raumklima einen hervorragenden Ausgleich verschaffen.
Digitales und BIM orientiertes 3-dimensionales Planen mit natürlichen Baustoffen sind aus unserer Sicht die Zukunft!
Sowohl die technisch konzeptionelle Gestaltung als auch die kreative Entwurfsaspekte werden in dem gesamten Entwicklungsprozess zusammen erarbeitet. Neben der Auseinandersetzung der Funktionalität arbeiten wir gemeinsam an der Form-& Farbgestaltung. Dadurch ergibt sich eine enorme Präzision in der praktischen, aber auch formal-ästhetischen Funktion.
Unsere Arbeit ist auf eine Art äusserst zweckorientiert, begibt sich allerdings auch auf die Suche nach unkonventionellen Lösungen.
Nicht nur im Unternehmen sondern auch privat sind wir ein Paar, das sich seit einer sehr langer Zeit kennt und gemeinsam das Leben als dreifache Eltern gestaltet. Unsere berufliche Fusion fügt sich zu einem innovativen Konzept aus Wissen & Leidenschaft zur Architektur & Design und zur Tradition & Moderne zusammen.
Wir, Irina und Björn, freuen uns auf eine erfolgreiche Zusammenarbeit mit Ihnen!




| Heemann | Architektur | ist ein Zusammenschluss von Björn Heemann, Architekt (FH) und gelerntem Maurer und Irina Heemann, Designerin, M.A..
Im Gegensatz zu anderen Architekturbüros liegt unsere Stärke und Einzigartigkeit in der Verbindung vom detailreichen & fachspezifischen Wissen - im Konstrukt von zahlreichen Bereichen wie Materialkunde, Ingenieurswesen, Technik, 3D und Design:
unserem Gespür von Verknüpfung zwischen architektonischen und designtypischen Elementen.
Spezialisiert haben wir uns auf ökologische und nachhaltige Baustoffe, die im Gegensatz zu herkömmlichen Materialien viele positive Eigenschaften aufweisen und dem Raumklima einen hervorragenden Ausgleich verschaffen.
Digitales und BIM orientiertes 3-dimensionales Planen mit natürlichen Baustoffen sind aus unserer Sicht die Zukunft!
Sowohl die technisch konzeptionelle Gestaltung als auch die kreative Entwurfsaspekte werden in dem gesamten Entwicklungsprozess zusammen erarbeitet. Neben der Auseinandersetzung der Funktionalität arbeiten wir gemeinsam an der Form-& Farbgestaltung. Dadurch ergibt sich eine enorme Präzision in der praktischen, aber auch formal-ästhetischen Funktion.
Unsere Arbeit ist auf eine Art äusserst zweckorientiert, begibt sich allerdings auch auf die Suche nach unkonventionellen Lösungen.
Nicht nur im Unternehmen sondern auch privat sind wir ein Paar, das sich seit einer sehr langer Zeit kennt und gemeinsam das Leben als dreifache Eltern gestaltet. Unsere berufliche Fusion fügt sich zu einem innovativen Konzept aus Wissen & Leidenschaft zur Architektur & Design und zur Tradition & Moderne zusammen.
Wir, Irina und Björn, freuen uns auf eine erfolgreiche Zusammenarbeit mit Ihnen!




| Heemann | Architektur |
Architekt (FH)
Björn Heemann
Designerin, Master of Arts
Irina Heemann
Homfelder Berg 2
27305 Bruchhausen - Vilsen
04252 768 92 10
0157 544 12 563
info@bjoernheemann.com
Steuernummer: 2346/117/14070
Mitglied der Architektenkammer Niedersachsen
Mitgliedsnummer: 21.509
Datenschutzerklärung
Die nachfolgende Datenschutzerklärung gilt für die Nutzung unseres Online-Angebots www.bjoernheemann.com. Wir messen dem Datenschutz große Bedeutung bei. Die Erhebung und Verarbeitung Ihrer personenbezogenen Daten geschieht unter Beachtung der geltenden datenschutzrechtlichen Vorschriften, insbesondere der Datenschutzgrundverordnung (DSGVO).
1. Name und Kontaktdaten des für die Datenverarbeitung auf dieser Webseite Verantwortlichen sowie des betrieblichen Datenschutzbeauftragten
Verantwortlicher: Architekt (FH) Björn Heemann
Datenschutzbeauftragte/r : Architekt (FH) Björn Heemann
| Heemann | Architektur | (im Folgenden: | Heemann | Architekten |) Herr HeemannHomfelder Berg 2, 27305 Bruchhausen - Vilsen
Email: info@bjoernheemann.com
Telefon: 0157 / 544 12 563Webseite: www.bjoernheemann.com
Der betriebliche Datenschutzbeauftragte von | Heemann | Architekten | ist unter der o.g. Anschrift sowie unter info@bjoernheemann.com erreichbar.
2. Internetangebot: Verarbeitung personenbezogener Daten
Wir verarbeiten personenbezogene Daten unserer Nutzer grundsätzlich nur, soweit dies zur Bereitstellung einer funktionsfähigen Website sowie unserer Inhalte und Leistungen erforderlich ist.
a) Besuch der Webseite
Für die Nutzung unseres Internetauftritts ist es nicht erforderlich, dass Sie personenbezogene Daten angeben. Beim Aufrufen unserer Website www.bjoernheemann.com werden allerdings durch den auf Ihrem Endgerät zum Einsatz kommenden Browser automatisch Informationen an den Server unserer Website gesendet. Dies ist notwendig, um Kommunikation im Internet zu ermöglichen. Diese Informationen werden temporär in einem sog. Logfile gespeichert. Folgende Informationen werden dabei erfasst und bis zur automatisierten Löschung gespeichert:
• IP-Adresse des anfragenden Rechners,
• Datum und Uhrzeit des Abrufs,
• Browsertyp,
• Sprache und Browser-Version,
• Inhalt des Abrufs,
• Zeitzone,
• Zugriffsstatus/http-Statuscode,
• Datenmenge,
• Webseite, von der aus der Zugriff erfolgt (Referrer-URL),
• Betriebssystem Ihres Rechners.Die genannten Daten werden durch uns zu folgenden Zwecken verarbeitet:
• Gewährleistung einer störungsfreien Auslieferung unserer Webseite,
• Gewährleistung einer komfortablen Nutzung unserer Webseite,
• Gewährleistung der Systemsicherheit und Systemstabilität,
• Missbrauchsbekämpfung,
• zu weiteren administrativen Zwecken, wie z.B. Aufstellen von Statistiken.Die Rechtsgrundlage für die Datenverarbeitung ist Art. 6 Abs. 1 S. 1 lit. f DSGVO (berechtigtes Interesse). Unser berechtigtes Interesse folgt aus den oben aufgelisteten Zwecken zur Datenverarbeitung. Eine Zusammenführung der o.g. Daten mit anderen Datenquellen wird nicht vorgenommen. Eine Identifizierung einzelner Webseitenbesucher findet nicht statt.
3. Weitergabe von Daten
Ihre Daten werden zu vorgenannten Zwecken ggf. an uns unterstützende Dienstleister weitergegeben, die wir sorgfältig ausgewählt und zur Einhaltung des Datenschutzrechts verpflichtet haben. Dabei kann es sich insbesondere um technische Dienstleister oder Versanddienstleister handeln.
Die Weitergabe Ihrer Daten an andere Dritte erfolgt ansonsten nur, wenn
• wir Ihre ausdrückliche Einwilligung nach Art. 6 Abs. 1 S. 1 lit. a DSGVO dafür erhalten haben,
• die Weitergabe nach Art. 6 Abs. 1 S. 1 lit. f DSGVO zur Geltendmachung, Ausübung oder Verteidi-gung von Rechtsansprüchen erforderlich ist und kein Grund zur Annahme besteht, dass Sie einüberwiegendes schutzwürdiges Interesse an der Nichtweitergabe Ihrer Daten haben,
• für die Weitergabe nach Art. 6 Abs. 1 S. 1 lit. c DSGVO eine gesetzliche Verpflichtung besteht,
• dies gesetzlich zulässig und nach Art. 6 Abs. 1 S. 1 lit. b DSGVO für die Abwicklung von Vertragsverhältnissen mit Ihnen erforderlich ist.
•
• 4. Dauer der Datenspeicherung
• Ihre personenbezogenen Daten werden gelöscht oder gesperrt, sobald der Zweck für die Speicherung ent- fällt, es sei denn, deren weitere Aufbewahrung ist zu Beweiszwecken, z.B. bei
• Angriffen auf die Serverinfra- struktur oder anderen Rechtsverletzungen, erforderlich oder dem stehen gesetzliche Aufbewahrungspflich- ten entgegen. Im Falle der Erfassung der Daten
• zur Bereitstellung der Website entfällt der Zweck, wenn die jeweilige Sitzung beendet ist. Im Falle der Speicherung der Daten in Logfiles ist dies nach spätestens 7 Tagen der Fall.
• 5. Cookies
• Wir setzen auf unserer Seite Cookies ein. Cookies sind kleine Textdateien, die im Rahmen Ihres Besuchs unserer Internetseiten von unserem Webserver an Ihren Browser gesandt und von
• diesem auf Ihrem Endgerät (Laptop, Tablet, Smartphone o.ä.) gespeichert und für einen späteren Abruf vorgehalten werden. Daher haben Sie als Nutzer auch die volle Kontrolle über die
• Verwendung von Cookies. Cookies richten auf Ihrem Endgerät keinen Schaden an und enthalten keine Viren. In dem Cookie werden Informationen abgelegt, die sich jeweils im
• Zusammenhang mit dem spezifisch eingesetzten Endgerät ergeben. Dies bedeutet jedoch nicht, dass wir dadurch unmittelbar Kenntnis von Ihrer Identität erhalten.
• Der Einsatz von Cookies dient dazu, die Nutzung unseres Angebots für Sie nutzerfreundlicher, effektiver und sicherer zu gestalten. So setzen wir sogenannte Session-Cookies ein, um zu
• erkennen, dass Sie einzelne Seiten unserer Website bereits besucht haben. Session-Cookies werden nach Verlassen unserer Seite automatisch gelöscht.
Darüber hinaus setzen wir ebenfalls zur Optimierung der Benutzerfreundlichkeit temporäre Cookies ein, die für einen bestimmten festgelegten Zeitraum auf Ihrem Endgerät gespeichert werden. Besuchen Sie unsere Seite erneut, um unsere Dienste in Anspruch zu nehmen, wird auf diese Weise automatisch erkannt, dass Sie bereits bei uns waren und welche Eingaben und Einstellungen Sie getätigt haben, um diese nicht noch einmal eingeben zu müssen.
Das Setzen von Cookies erfolgt auf der Grundlage von Art. 6 Abs. 1 S. 1 lit. f DSGVO (berechtigtes Interesse). Als Betreiber dieser Webseite haben wir ein berechtigtes Interesse an der effektiven, störungsfreien und sicheren Funktionalität unserer Dienste.
Die meisten Browser akzeptieren Cookies automatisch. Sie können Ihren Browser jedoch so konfigurieren, dass keine Cookies auf Ihrem Computer gespeichert werden und damit der Setzung von Cookies dauerhaft widersprechen. Durch Browsereinstellungen ist es ebenfalls möglich, dass Sie stets einen Hinweis erhalten, bevor ein neuer Cookie angelegt wird und damit im Einzelfall über die Annahme entscheiden können. Die vollständige Deaktivierung von Cookies kann dazu führen, dass Sie nicht alle Funktionen unserer Website nutzen können.
6. Betroffenenrechte
Nach gelten Datenschutzgesetzen haben Sie verschiedene Rechte bzgl. Ihrer personenbezogenen Daten. Möchten Sie Ihre Rechte geltend machen, richten Sie bitte eine Anfrage per Mail oder Post unter eindeutiger Identifizierung Ihrer Person an die o.g. Adresse des Verantwortlichen. Sie haben folgende Rechte:
• gemäß Art. 15 DSGVO ein Recht auf Auskunft über Ihre bei uns gespeicherten Daten. Dies umfasst insbesondere die Auskunft über die Verarbeitungszwecke, die Kategorien der personenbezogenen Daten, die Kategorien von Empfängern gegenüber denen Ihre Daten offengelegt wurden oder werden, die geplante Speicherdauer, die Herkunft Ihrer Daten, sofern diese nicht direkt bei Ihnen erhoben wurden,
• gemäß Art. 16 DSGVO ein Recht auf unverzügliche Berichtigung unrichtiger oder Vervollständigung Ihrer bei uns gespeicherten personenbezogenen Daten,
• gemäß Art. 17 DSGVO ein Recht auf Löschung Ihrer bei uns gespeicherten personenbezogenen Daten, soweit nicht die Verarbeitung zur Ausübung des Rechts auf freie Meinungsäußerung und Information, zur Erfüllung einer rechtlichen Verpflichtung, aus Gründen des öffentlichen Interesses oder zur Geltendmachung, Ausübung oder Verteidigung von Rechtsansprüchen erforderlich ist,
• gemäß Art. 18 DSGVO Recht auf Einschränkung der Verarbeitung Ihrer personenbezogenen Daten, soweit die Richtigkeit der Daten von Ihnen bestritten wird, die Verarbeitung unrechtmäßig ist, Sie aber deren Löschung ablehnen und wir die Daten nicht mehr benötigen, Sie jedoch diese zur Geltendmachung, Ausübung oder Verteidigung von Rechtsansprüchen benötigen oder Sie gemäß Art. 21 DSGVO Widerspruch gegen die Verarbeitung eingelegt haben,
• gemäß Art. 20 DSGVO Recht auf Datenübertragbarkeit, d.h. Sie können Ihre personenbezogenen Daten, die bei uns gespeichert sind, in einem strukturierten, gängigen und maschinenlesebaren Format erhalten oder die Übermittlung an einen anderen Verantwortlichen verlangen,
• gemäß Art. 7 Abs. 3 DSGVO Recht auf jederzeitigen Widerruf Ihrer einmal erteilten Einwilligung. Dies hat zur Folge, dass wir die Datenverarbeitung, die auf dieser Einwilligung gemäß Art. 6 Abs. 1
S. 1 lit. a DSGVO beruhte, für die Zukunft nicht mehr fortführen dürfen. Die Rechtmäßigkeit der aufgrund der Einwilligung bis zum Widerruf erfolgten Verarbeitung wird dadurch nicht berührt,
• gemäß Art. 21 DSGVO Recht auf Widerspruch gegen die Verarbeitung Ihrer personenbezogenen Daten, welche wir auf der Grundlage eines berechtigten Interesses nach Art. 6 Abs. 1 S. 1 lit. fDSGVO verarbeiten,
• gemäß Art. 77 DSGVO Recht auf Beschwerde bei der zuständigen Aufsichtsbehörde. ZuständigeAufsichtsbehörde ist die Landesdatenschutzbeauftragte Niedersachsen, Prinzenstraße 5, 30159, E-Mail: poststelle@lfd.niedersachsen.de.7. Datensicherheit6Wir setzen technische und organisatorische Sicherheitsmaßnahmen ein, um personenbezogene Daten zu schützen, insbesondere gegen zufällige oder vorsätzliche Manipulation, Verlust, Zerstörung oder gegen den Angriff unberechtigter Personen. Da eine Datenübertragung im Internet jederzeit Sicherheitslücken aufweisen kann, ist ein absoluter Schutz der personenbezogenen Daten vor dem Zugriff Dritter technisch nicht möglich. Unsere Webseite nutzt zum Schutz der Übertragung vertraulicher Inhalte (wie z.B. Daten über ein Kontaktformular) das verbreitete SSL-Verfahren (Secure Socket Layer) in Verbindung mit der jeweils höchsten Verschlüsselungsstufe, die von Ihrem Browser unterstützt wird. Ob eine Seite unseres Internetauftrittes verschlüsselt übertragen wird, erkennen Sie an der „https://“-Adresszeile Ihres Browsers und am geschlossenen Schloss-Symbol in der Browserzeile. Wenn eine SSL-Verschlüsselung besteht, können Daten, die Sie an uns übermitteln, bei der Übertragung nicht von Dritten mitgelesen oder geändert werden.8. Aktualität und Änderung dieser DatenschutzerklärungDiese Datenschutzerklärung ist aktuell gültig und hat den Stand Juli 2018. Durch die Weiterentwicklung unserer Webseite oder aufgrund geänderter gesetzlicher beziehungsweise behördlicher Vorgaben kann es notwendig werden, diese Datenschutzerklärung zu ändern. Die jeweils aktuelle Datenschutzerklärung kann jederzeit auf der Website unter www.bjoernheemann.com/impressum von Ihnen abgerufen und ausgedruckt werden.